全网最全CAD万能字体库,一次解决图纸“?”问题

CAD作为室内设计师的忠实伙伴,在日常使用过程中却总是会遇到些小问题,虽不致命,但也实在麻烦且费时费力。比如无法复制模型、填充卡死、字体无法显示等,解决起来气得想砸电脑。

在设计工作中,需要打开其他人的图纸的情况也非常多,而这之中,最容易出现的就是字体缺失的情况,今天我们就来具体讲讲这个问题。

文末附 常用CAD字体大全

01

满屏“?”的图纸

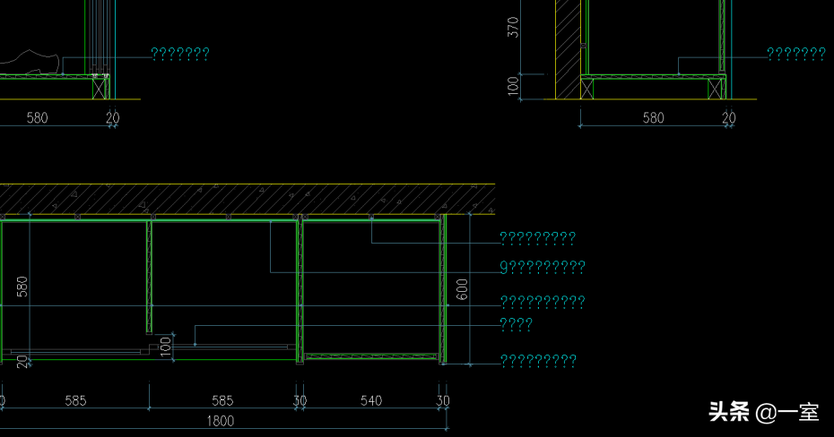
在工作中,打开别人的图纸,甚至是换台电脑打开自己的图纸,却发现图纸中的文字全变成了“?”,看着满屏“?”的图纸实在是糟心。

一般出现“?”的流程是这样的,打开一份CAD图纸,跳出缺少SHX文件的对话框,即使这个时候你选择“为每个SHX文件指定替换文件”,打开后,依旧会有文字变“?”的情况存在。

02

这样来解决“?”

想要解决这个问题,有几个方法。首先就是可以选择安装缺少的字体。点击“为每个SHX文件指定替换文件”,在弹出的对话框中就可以看到你缺少的字体,可以在网络上找到字体并下载安装。

还有一种方法是小编经常使用的,先点击变成“?”的文字,右键选择类似对象,ctrl+1,选择调整合适的文字样式。但这种方法也有缺点,有时候无法选择所有文字,可以通过“工具”-“快速选择”来选中文字。

▲ 右键选择类似对象

▲ 调整文字样式

当然,想解决“?”还有其他的方法,最一劳永逸的当然是提前安装上最全最常用的字体。

03

万能CAD字体库

如果你安装了一个超全的万能CAD字体库,那出现“?”的几率绝对会大大降低甚至没有,那该如何安装这样的一个字体库呢?

首先你要拥有一些SHX格式的字体,右击CAD快捷方式,选择“打开文件位置”,找到Fonts的字体文件夹,将你的字体复制进去即可。

如果字体太多,或者不想复制,也可以这样做。复制你存放字体的文件夹的路径,进入CAD,输入命令OP,选择“文件”,点击“支持文件搜索路径”,添加一个,将刚刚复制的路径粘贴进去即可。

什么?你没有字体库!没关系,这里小编为你准备了常用CAD字体大全,超4000款字体,还单独总结出了最常用的字体和CAD钢筋符号字体,非常的实用,让你图纸不再出现“?”。

常用CAD字体大全

部分内容展示

注意:如图纸含有小众字体,暂时无法消除“?”

【免费领取】关注+转发 然后私信“素材”

版权声明:我们尊重原创。文字美图素材,版权属于原作者。部分文章推送时因种种原因未能与原作者联系上,若涉及版权问题,敬请原作者联系我们,立即处理。

「素材」CAD万能字体精华版

在用PS打开一些来路不明的PSD文件时,时常会弹出以下这个提示画面:

领取提示

评论区随意评论

私信我关键词:PS

根据提示即可领取

这是PS字体库内缺少该PSD内用到的字体的缘故。省事的话通常会选择忽略或用默认的字体替换之,反正影响也不大……

但在打开CAD文件 时遇到这种情况就比较头疼了。

因为CAD字体种类过于繁多(cad支持两种字体:一种是TrueType字体,后缀名为.ttf ,保存在windows的font文件夹。一种是cad 自己开发的字体,后缀名为.shx ,保存在CAD安装目录下的fonts文件夹里。一般缺少的都是shx字体,但有时也有ttf字体),以致于几乎每打开一个别人的CAD文件都会弹出缺少SHX文件的弹窗:

而那些缺失的字体往往会以“??? ”疑问号或者干脆消失不见的形式呈现在你面前,连猜的机会都不给你:

哪怕你安装了网上很火的多达一个G的、含2400+CAD字体的“CAD字体大全 ”,但打开某些CAD图纸,尤其是建筑施工图时,还是不可避免地有字体显示为问号。而且CAD字体安装越多,CAD打开就越慢。 有的同事的CAD直接就卡死了。

因此,不到万不得已,并不建议安装大量CAD字体:

今天与大家分享一套CAD万能字体浓缩版 ,均为从结构绘图软件中提取出来的字体。由于问号都是这些字体生成的,所以在安装了这些字体,就能完美解决CAD图纸显示问号的问题了。

这套字体只有50mb。有了这个CAD浓缩字体包,就不用下载安装动辄几个G的CAD字体大全了:

只要把以上字体复制到你的CAD字体文件夹里,就可以解决字体乱码和消失的问题,愉快地画图审图了。

以上CAD字体几乎适用于任何CAD版本▽

相关问答

cad万能字体怎么设置?

1.首先在电脑桌面上选中需要设置默认字体的CAD软件的快捷方式。然后点击鼠标右键,在快捷菜单中选择“属性”选项进行点击。3.然后在属性的窗口中点击“打...

如何安装cad万能字体?

要安装CAD的万能字体,需要按照以下步骤进行操作:1.首先,下载cad万能字体,可以在网上搜寻相关资源进行下载,也可到CAD应用商店下载安装;2.打开CAD软件,...

万能字体怎样安装在cad里?

将万能字体复制粘贴到cad的字体库中就可以用了,但也得看兼不兼容。将万能字体复制粘贴到cad的字体库中就可以用了,但也得看兼不兼容。

cad如何加载万能字体?

要加载万能字体,您可以按照以下步骤进行操作:首先,确保您已经下载了所需的字体文件,并将其保存在您的计算机上。然后,打开CAD软件并进入字体设置选项。在...

cad字体从哪里下?

操作方法01首先,我们需要先下载字体,比如我们下载仿宋_GB2312字体。02下载得到的一般是压缩文件形式,需要解压缩一下,解压之后复制一下后缀名为“.ttf”...

cad2015字体怎么下载?

要下载CAD2015字体,您可以按照以下步骤进行操作:1.打开CAD2015软件并进入字体设置界面。2.在字体设置界面中,您可以选择“下载字体”选项。3.点击“下...

CAD字体如何下载安装?

1.首先,在网上搜索并下载所需要的CAD字体,可在一些知名的CAD字体商城中下载。下载的字体通常是压缩文件,将其解压缩至任意一个目录。2.打开控制面板,选择...

cad字体下载方法?

步骤/方式一首先在你的桌面或者开始菜单中找到cad的快捷方式。点右键后,找到“打开文件位置”。步骤/方式二在弹出的窗口中找到“fonts”。步骤/方式三打...

cad专属字体?

CAD自带字体有哪些,系统字体下载SHX字体文件介绍SHX字体,是cad系统自带的一种字体文件,这种字体符合了cad的文字标准。其后缀名为shx,一般被保存在cad的文...

cad字体hz-zw字体哪里下载?

最全的CAD字体库中也没有你要的字体,可能是手工改名的字体,你也手工改一个算了,找一个类似的字体文件,把文件名改为hz-zw.shx,再拷贝到AutoCAD软件的字体...