最标准公文格式(一图搞定)

为提高党政机关公文的规范化、标准化水平,2012年6月29日,国家质量监督检验检疫总局、国家标准化管理委员会发布了《党政机关公文格式》国家标准(GB/T 9704-2012)。该标准于2012年7月1日起正式实施。此标准是对国标《国家行政机关公文格式》(GB/T 9704-1999 )的修订,对公文用纸、印刷装订、格式要素、式样等作出了具体规定。

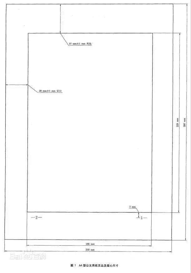
公文用纸幅面尺寸

公文用纸采用GB/T 148中规定的A4型纸,其成品幅面尺寸为:210 mm×297 mm

页边与版心尺寸

公文用纸天头(上白边)为37 mm±1 mm,公文用纸订口(左白边)为28mm±1mm,版心尺寸为156 mm×225 mm

字体和字号

如无特殊说明,公文格式各要素一般用3号仿宋 体字。

行数和字数

一般每面排22行 ,每行排28个字 ,并撑满版心。

发文机关标志

由发文机关全称或者规范化简称加“文件”二字组成,也可以使用发文机关全称或者规范化简称。

发文机关标志居中排布,上边缘至版心上边缘为35mm ,推荐使用小标宋体字 ,颜色为红色,以醒目、美观、庄重为原则。

联合行文时,如需同时标注联署发文机关名称,一般应当将主办机关名称排列在前;如有“文件”二字,应当置于发文机关名称右侧,以联署发文机关名称为准上下居中排布。

单一机关发文带“文件”二字

多个发文机关联合发文不带“文件”二字

发文字号

编排在发文机关标志下空二行 位置,居中排布。年份、发文顺序号用阿拉伯数字标注;年份应标全称,用六角括号“〔〕”括入;发文顺序号不加“第”字,不编虚位(即1不编01),在阿拉伯数字后加“号”字。

上行文的发文字号居左空一字编排,与最后一个签发人姓名处在同一行。

签发人

由“签发人”三字加全角冒号和签发人姓名组成,居右空一字 ,编排在发文机关标志下空二行位置。“签发人”三字用3号仿宋体字 ,签发人姓名用3号楷体字

如有多个签发人,签发人姓名按照发文机关的排列顺序从左到右、自上而下依次均匀编排,一般每行排两个姓名,回行时与上一行第一个签发人姓名对齐。

单个签发人

多个签发人

版头中的分隔线

发文字号之下4mm 处居中印一条与版心等宽的红色分隔线。

标题

一般用2号小标宋体字 ,编排于红色分隔线下空二行位置 ,分一行或多行居中排布;回行时,要做到词意完整,排列对称,长短适宜,间距恰当,标题排列应当使用梯形或菱形。

主送机关

编排于标题下空一行位置居左顶格 ,回行时仍顶格,最后一个机关名称后标全角冒号

正文

公文首页必须显示正文。一般用3号仿宋体字 ,编排于主送机关名称下一行,每个自然段左空二字,回行顶格。文中结构层次序数依次可以用“一、”“(一)”“1.”“(1)”标注;一般第一层用黑体字第二层用楷体字第三层和第四层用仿宋体字标注

附件

如有附件,在正文下空一行左空二字编排 “附件”二字,后标全角冒号和附件名称。如有多个附件,使用阿拉伯数字标注附件顺序号(如“附件:1. XXXXX”);附件名称后不加标点符号。附件名称较长需回行时,应当与上一行附件名称的首字对齐。

单个附件

多个附件

发文机关署名、成文日期和印章

成文日期一般右空四字编排 ,印章用红色。

单一行文发文机关

两个机关联合行文

五个机关联合行文

版记中的分隔线

版记中的分隔线与版心等宽,首条分隔线和末条分隔线用粗线(推荐高度为0. 35 mm ),中间的分隔线用细线(推荐高度为0. 25 mm )。首条分隔线位于版记中第一个要素之上,末条分隔线与公文最后一面的版心下边缘重合。

抄送机关

如有抄送机关,一般用4号仿宋体字 ,在印发机关和印发日期之上一行、左右各空一字编排。“抄送”二字后加全角冒号和抄送机关名称,回行时与冒号后的首字对齐,最后一个抄送机关名称后标句号。

如需把主送机关移至版记,除将“抄送”二字改为“主送”外,编排方法同抄送机关。既有主送机关又有抄送机关时,应当将主送机关置于抄送机关之上一行,之间不加分隔线。

版记要素

页码

一般用4号半角宋体阿拉伯数字 ,编排在公文版心下边缘之下,数字左右各放一条一字线 ;一字线上距版心下边缘7 mm 。单页码居右空一字,双页码居左空一字。公文的版记页前有空白页的,空白页和版记页均不编排页码。公文的附件与正文一起装订时,页码应当连续编排。

党政机关公文格式标准(很有用,请惠存)

很多公务员朋友尤其是新进公务员在公文写作时,会遇到格式拿不准的情况,这时候可以先直接对照国家标准最后的式样。今天分享《党政机关公文格式》国家标准给大家,图文并茂,很有用,请惠存~

以下综合《党政机关公文处理工作条例》以及配套文件《党政机关公文格式》国家标准(GB/T 9704-2012)梳理。

党政机关公文格式

1. 范围

本标准规定了党政机关公文通用的纸张要求、排版和印制装订要求、公文格式各要素的编排规则,并给出了公文的式样。

本标准适用于各级党政机关制发的公文。其他机关和单位的公文可以参照执行。

使用少数民族文字印制的公文,其用纸、幅面尺寸及版面、印制等要求按照本标准执行,其余可以参照本标准并按照有关规定执行。

2. 规范性引用文件

下列文件对于本标准的应用是必不可少的。凡是注日期的引用文件,仅所注日期的版本适用于本标准。凡是不注日期的引用文件,其最新版本(包括所有的修改单)适用于本标准。

GB/T 148 印刷、书写和绘图纸幅面尺寸

GB 3100 国际单位制及其应用

GB 3101 有关量、单位和符号的一般原则

GB 3102(所有部分) 量和单位

GB/T 15834 标点符号用法

GB/T 15835 出版物上数字用法

3. 术语和定义

下列术语和定义适用于本标准。

3. 1 字 word

标示公文中横向距离的长度单位。在本标准中,一字指一个汉字宽度的距离。

3. 2 行 line

标示公文中纵向距离的长度单位。在本标准中,一行指一个汉字的高度加3号汉字高度的7/8的距离。

4. 范围公文用纸主要技术指标

公文用纸一般使用纸张定量为60 g/m2~80 g/m2的胶版印刷纸或复印纸。纸张白度80%~90%,横向耐折度≥15次,不透明度≥85%,pH值为7.5~9.5。

5. 公文用纸幅面尺寸及版面要求

5. 1 幅面尺寸

公文用纸采用GB/T 148中规定的A4型纸,其成品幅面尺寸为:210 mm×297 mm.

5.2 版面

5.2.1 页边与版心尺寸

公文用纸天头(上白边)为37 mm±1 mm,公文用纸订口(左白边)为28mm±1mm,版心尺寸为156 mm×225 mm.

5.2.2 字体和字号

如无特殊说明,公文格式各要素一般用3号仿宋体字。特定情况可以作适当调整。

5.2.3 行数和字数

一般每面排22行,每行排28个字,并撑满版心。特定情况可以作适当调整。

5.2.4 文字的颜色

如无特殊说明,公文中文字的颜色均为黑色。

6. 印制装订要求

6.1 制版要求

版面干净无底灰,字迹清楚无断划,尺寸标准,版心不斜,误差不超过1 mm.

6.2 印刷要求

双面印刷;页码套正,两面误差不超过2mm.黑色油墨应当达到色谱所标BL100%,红色油墨应当达到色谱所标Y80%、M80%.印品着墨实、均匀;字面不花、不白、无断划。

6.3 装订要求

公文应当左侧装订,不掉页,两页页码之间误差不超过4 mm,裁切后的成品尺寸允许误差±2mm,四角成90°,无毛茬或缺损。

骑马订或平订的公文应当:

(a)订位为两钉外订眼距版面上下边缘各70mm处,允许误差±4mm;

(b)无坏钉、漏钉、重钉,钉脚平伏牢固;

(c)骑马订钉锯均订在折缝线上,平订钉锯与书脊间的距离为3mm--5mm.

包本装订公文的封皮(封面、书脊、封底)与书芯应吻合、包紧、包平、不脱落。

7. 公文格式各要素编排规则

7.1 公文格式各要素的划分

本标准将版心内的公文格式各要素划分为版头、主体、版记三部分。公文首页红色分隔线以上的部分称为版头;公文首页红色分隔线(不含)以下、公文末页首条分隔线(不含)以上的部分称为主体;公文末页首条分隔线以下、末条分隔线以上的部分称为版记。

页码位于版心外。

如下图:

7.2 版头

7.2.1 份号

如需标注份号,一般用6位3号阿拉伯数字,顶格编排在版心左上角第一行。

7.2.2 密级和保密期限

如需标注密级和保密期限,一般用3号黑体字,顶格编排在版心左上角第二行;保密期限中的数字用阿拉伯数字标注。

7.2.3 紧急程度

如需标注紧急程度,一般用3号黑体字,顶格编排在版心左上角;如需同时标注份号、密级和保密期限、紧急程度,按照份号、密级和保密期限、紧急程度的顺序自上而下分行排列。

7.2.4 发文机关标志

由发文机关全称或者规范化简称加"文件"二字组成,也可以使用发文机关全称或者规范化简称。

发文机关标志居中排布,上边缘至版心上边缘为35mm,推荐使用小标宋体字,颜色为红色,以醒目、美观、庄重为原则。

联合行文时,如需同时标注联署发文机关名称,一般应当将主办机关名称排列在前;如有"文件"二字,应当置于发文机关名称右

7.3 主体

7.3.1 标题

一般用2号小标宋体字,编排于红色分隔线下空二行位置,分一行或多行居中排布;回行时,要做到词意完整,排列对称,长短适宜,间距恰当,标题排列应当使用梯形或菱形。

7.3.2 主送机关

编排于标题下空一行位置,居左顶格,回行时仍顶格,最后一个机关名称后标全角冒号。如主送机关名称过多导致公文首页不能显示正文时,应当将主送机关名称移至版记,标注方法见7.4.2.

7.3.3 正文

公文首页必须显示正文。一般用3号仿宋体字,编排于主送机关名称下一行,每个自然段左空二字,回行顶格。文中结构层次序数依次可以用"一、""(一)""1.""(1)"标注;一般第一层用黑体字、第二层用楷体字、第三层和第四层用仿宋体字标注。

7.3.4 附件说明

如有附件,在正文下空一行左空二字编排"附件"二字,后标全角冒号和附件名称。如有多个附件,使用阿拉伯数字标注附件顺序号(如"附件:1. XXXXX");附件名称后不加标点符号。附件名称较长需回行时,应当与上一行附件名称的首字对齐。

7.3.5 发文机关署名、成文日期和印章

7.3.5.1 加盖印章的公文

成文日期一般右空四字编排,印章用红色,不得出现空白印章。

单一机关行文时,一般在成文日期之上、以成文日期为准居中编排发文机关署名,印章端正、居中下压发文机关署名和成文日期,使发文机关署名和成文日期居印章中心偏下位置,印章顶端应当上距正文(或附件说明)一行之内。

联合行文时,一般将各发文机关署名按照发文机关顺序整齐排列在相应位置,并将印章一一对应、端正、居中下压发文机关署名,最后一个印章端正、居中下压发文机关署名和成文日期,印章之间排列整齐、互不相交或相切,每排印章两端不得超出版心,首排印章顶端应当上距正文(或附件说明)一行之内。

7.3.5.2 不加盖印章的公文

单一机关行文时,在正文(或附件说明)下空一行右空二字编排发文机关署名,在发文机关署名下一行编排成文日期,首字比发文机关署名首字右移二字,如成文日期长于发文机关署名,应当使成文日期右空二字编排,并相应增加发文机关署名右空字数。

联合行文时,应当先编排主办机关署名,其余发文机关署名依次向下编排。

7.3.5.3 加盖签发人签名章的公文

单一机关制发的公文加盖签发人签名章时,在正文(或附件说明)下空二行右空四字加盖签发人签名章,签名章左空二字标注签发人职务,以签名章为准上下居中排布。在签发人签名章下空一行右空四字编排成文日期。

联合行文时,应当先编排主办机关签发人职务、签名章,其余机关签发人职务、签名章依次向下编排,与主办机关签发人职务、签名章上下对齐;每行只编排一个机关的签发人职务、签名章;签发人职务应当标注全称。

签名章一般用红色。

7.3.5.4 成文日期中的数字

用阿拉伯数字将年、月、日标全,年份应标全称,月、日不编虚位(即1不编为01)。

7.3.5.5 特殊情况说明

当公文排版后所剩空白处不能容下印章或签发人签名章、成文日期时,可以采取调整行距、字距的措施解决。

7.3.6 附注

如有附注,居左空二字加圆括号编排在成文日期下一行。

7.3.7 附件

附件应当另面编排,并在版记之前,与公文正文一起装订。"附件"二字及附件顺序号用3号黑体字顶格编排在版心左上角第一行。附件标题居中编排在版心第三行。附件顺序号和附件标题应当与附件说明的表述一致。附件格式要求同正文。

如附件与正文不能一起装订,应当在附件左上角第一行顶格编排公文的发文字号并在其后标注"附件"二字及附件顺序号。

7.4 版记

7.4.1 版记中的分隔线

版记中的分隔线与版心等宽,首条分隔线和末条分隔线用粗线(推荐高度为0. 35 mm),中间的分隔线用细线(推荐高度为0. 25 mm)。首条分隔线位于版记中第一个要素之上,末条分隔线与公文最后一面的版心下边缘重合。

7.4.2 抄送机关

如有抄送机关,一般用4号仿宋体字,在印发机关和印发日期之上一行、左右各空一字编排。"抄送"二字后加全角冒号和抄送机关名称,回行时与冒号后的首字对齐,最后一个抄送机关名称后标句号。

如需把主送机关移至版记,除将"抄送"二字改为"主送"外,编排方法同抄送机关。既有主送机关又有抄送机关时,应当将主送机关置于抄送机关之上一行,之间不加分隔线。

7.4.3 印发机关和印发日期

印发机关和印发日期一般用4号仿宋体字,编排在末条分隔线之上,印发机关左空一字,印发日期右空一字,用阿拉伯数字将年、月、日标全,年

7.5 页码

一般用4号半角宋体阿拉伯数字,编排在公文版心下边缘之下,数字左右各放一条一字线;一字线上距版心下边缘7 mm.单页码居右空一字,双页码居左空一字。公文的版记页前有空白页的,空白页和版记页均不编排页码。公文的附件与正文一起装订时,页码应当连续编排。

8. 公文中的横排表格

A4纸型的表格横排时,页码位置与公文其他页码保持一致,单页码表头在订口一边,双页码表头在切口一边。

9. 公文中计量单位、标点符号和数字的用法

公文中计量单位的用法应当符合GB 3100、GB 3101和GB 3102(所有部分),标点符号的用法应当符合GB/T 15834,数字用法应当符合GB/T 15835.

10. 公文的特定格式

10.1 信函格式

发文机关标志使用发文机关全称或者规范化简称,居中排布,上边缘至上页边为30mm,推荐使用红色小标宋体字。联合行文时,使用主办机关标志。

发文机关标志下4 mm处印一条红色双线(上粗下细),距下页边20 mm处印一条红色双线(上细下粗),线长均为170 mm,居中排布。

如需标注份号、密级和保密期限、紧急程度,应当顶格居版心左边缘编排在第一条红色双线下,按照份号、密级和保密期限、紧急程度的顺序自上而下分行排列,第一个要素与该线的距离为3号汉字高度的7/8.

发文字号顶格居版心右边缘编排在第一条红色双线下,与该线的距离为3号汉字高度的7/8.

标题居中编排,与其上最后一个要素相距二行。

第二条红色双线上一行如有文字,与该线的距离为3号汉字高度的7/8.

首页不显示页码。

版记不加印发机关和印发日期、分隔线,位于公文最后一面版心内最下方。

10.2 命令(令)格式

发文机关标志由发文机关全称加"命令"或"令"字组成,居中排布,上边缘至版心上边缘为20 mm,推荐使用红色小标宋体字。

发文机关标志下空二行居中编排令号,令号下空二行编排正文。

签发人职务、签名章和成文日期的编排见7. 3. 5. 3.

10.3 纪要格式

纪要标志由"XXXXX纪要"组成,居中排布,上边缘至版心上边缘为35 mm,推荐使用红色小标宋体字。

标注出席人员名单,一般用3号黑体字,在正文或附件说明下空一行左空二字编排"出席"二字,后标全角冒号,冒号后用3号仿宋体字标注出席人单位、姓名,回行时与冒号后的首字对齐。

标注请假和列席人员名单,除依次另起一行并将"出席"二字改为"请假"或"列席"外,编排方法同出席人员名单。

纪要格式可以根据实际制定。

11. 式样

全图展示如下:

A4型公文用纸页边及版心尺寸见图1;

公文首页版式见图2;

联合行文公文首页版式1见图3;

联合行文公文首页版式2见图4;

公文末页版式1见图5;

公文末页版式2见图6;

联合行文公文末页版式1见图7;

联合行文公文末页版式2见图8;

附件说明页版式见图9;

带附件公文末页版式见图10;

信函格式首页版式见图11;

命令(令)格式首页版式见图12。

图1:A4型公文用纸页边及版心尺寸↓↓

图2:公文首页版式↓↓

图3:联合行文公文首页版式1↓↓

图4:联合行文公文首页版式2↓↓

图5:公文末页版式1↓↓

图6:公文末页版式2↓↓

图7:联合行文公文末页版式1↓↓

图8:联合行文公文末页版式2↓↓

图9:附件说明页版式↓↓

图10:带附件公文末页版式↓↓

图11:信函格式首页版式↓↓

图12:命令(令)格式首页版式↓↓

相关问答

【标准的行政公文的格式,比如字体,行距,字体大小,字间距,等...

[最佳回答]公文格式一、公文用纸统一采用国际标准A4型纸,双面印刷.二、行文格式主要要求(一)发文机关标示:由发文机关全称或规范化简称后加“文件”组成.发文...

2021最标准公文字体格式?

答:公文纸一般采用国内通用的16开型,推荐采用国际标准A4型,供张贴的公文用纸幅度面尺寸,可根据实际需要确定。标题的字体:字体一般宋体、黑体,字号要大于...

公文字体要求?

政府公文格式及公文字体字号标准标题:小标宋体,二号字正文:仿宋,三号字行间距:一般设置“固定值”28磅一般惯例,政府文件用A4纸,党委文件用16K保密等...

正规文档字体要求?

页码位于底端外侧,用“-1-”格式。空白页和空白页以后的页不标识页码。7.引用文件要求引用文件包括发文机关、文件全称和发文字号(六角括号“〔〕”括入)。...

一般公文的格式和字体有什么要求?

一般公文的格式和字体有一定要求。格式方面,一般要求公文必须按照规定的格式来书写,包括标题、内容、落款等。字体方面,一般要求公文必须使用规定的字体,如...

一般公文的格式和字体有什么要求?

具体如下一、公文用纸统一采用国际标准A4型纸,双面印刷。二、行文格式主要要求(一)发文机关标示:由发文机关全称或规范化简称后加“文件”组成。发文机关...

一般公文的格式和字体有什么要求?

一般公文包括通知,通报,通告,情况报告,请示等文体。这些公文一般格式是用二号大标宋字体作为标题,然后标题下面要有发文字号,正文开头是主送单位名称,然后...

正式公文字体规范?

秘密等级:绝密,机密,秘密(三号黑体、版心右上角)紧急程度:特级,急件(三号黑体、版心右上角)排版每面排22行,28个字发文字号:三号仿宋体签发人:三...一,文...

公文字体要求?

1.公文标题用小2号微软简标宋字或小2号小标宋。2.正文用小3号方正仿宋简体字或小3号仿宋体字。3.一级标题用黑体小3号字。4.二级标题用楷体小3...

公文中的字体要求是什么?

字体和字号如无特殊说明,公文格式各要素一般用3号仿宋体字。特定情况可以作适当调整。口诀:一黑二楷三仿宋四也仿宋字体和字号如无特殊说明,公文格式各...